Skip to Top NavigationSkip to ContentSkip to Footer
Ferris State University BulldogFerris State University Logo

Stacey Dewitt

Master of Architecture

Stacey DeWitt

Statement

My passion for nature plays an integral role in my approach to design. This love of the natural environment drives me to feel a deep respect and responsibility that is a driver to integrate sustainable strategies into my projects.

I enjoy a collaborative approach to design. Building relationships with colleagues and with the owners of a project makes the process meaningful. I also believe that this strategy results in a project with a strong purpose enhanced throughout the design. I find the process of searching and finding "win-wins" satisfying.

I find form through a negotiation between the greater context of a proposed project. This method begins by seeking to understand the greater context of environment, site conditions, and social and economic conditions. Design results in my work are a result of a good understanding of this framework along with program requirements.

I have an appreciation for simple forms that embrace the natural features of the site. I often find myself trying to reduce the sense of enclosed space. Always asking myself how can one feel connected to nature while inhabiting the interior. This is often accomplished through minimal thresholds and use of rich natural materials that one engages with.

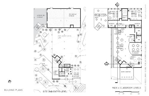
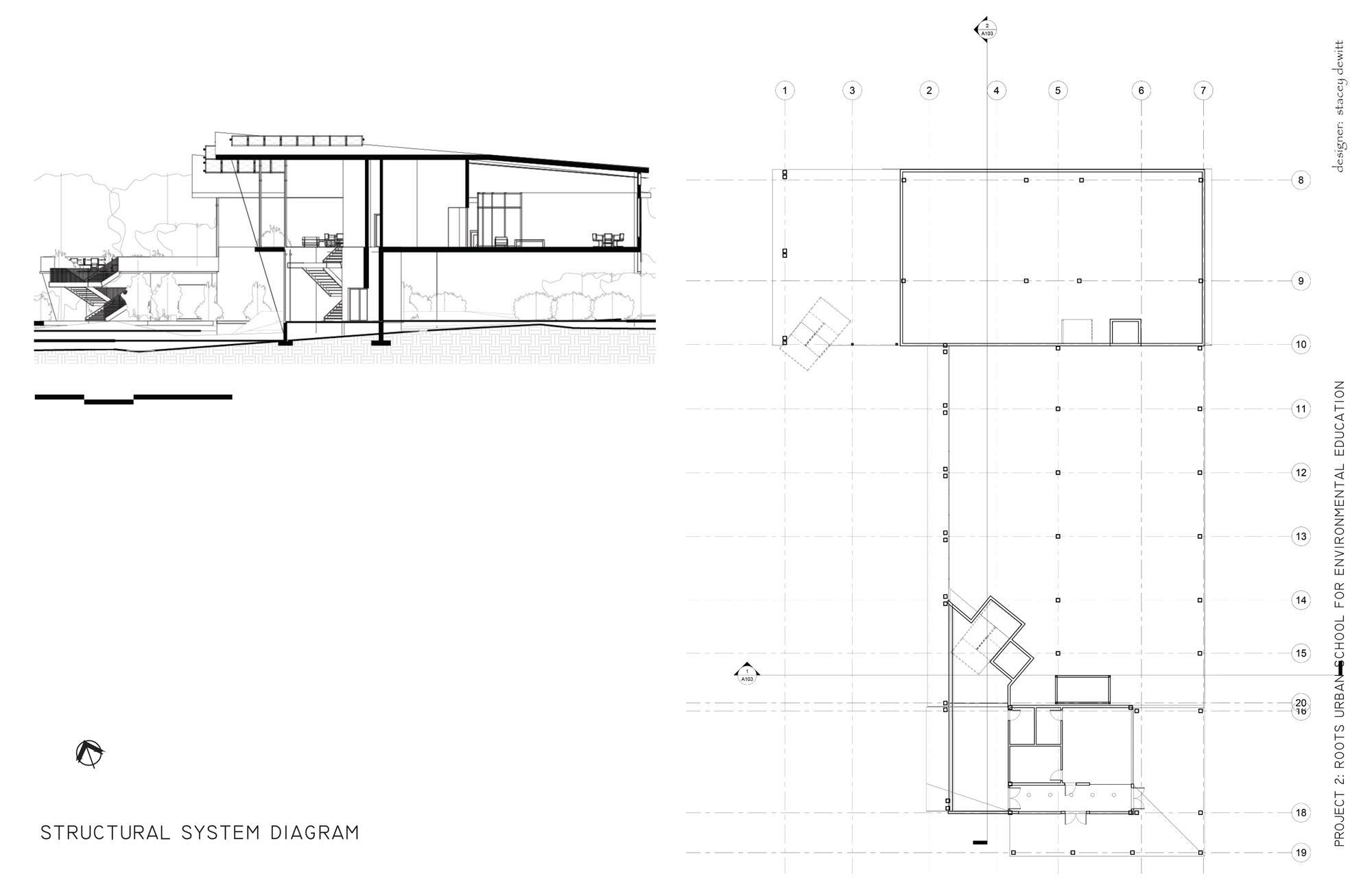
My thesis work is driven by this passion for connection with nature. Through study of the historical, cultural and environmental conditions in Saugatuck, Michigan I am working to produce a way to embrace the natural ecosystem of the urban riverfront in a way that lends itself to a sustainable urbanism.

 

What my time at KCAD meant to me

I came into the KCAD M.Arch program with a desire to make a difference in people's lives and within the natural environment. My studies in architecture here have given me the tools to broaden my reach to make a difference in the community. My hope is to create designs that empower healthy and sustainable communities.